
姫路市 大室整形外科脊椎・関節クリニック デイケアセンター完成2021-09-06 10:00:15
姫路の大室整形外科 脊椎・関節クリニックの駐車場の一部にデイケアセンターが完成しました。

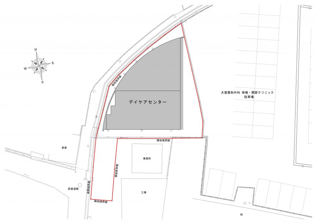
敷地が扇形をしている為、建物も建ぺい率いっぱいの扇形になりました。
偶然にも大室整形外科のロゴマークのような形に。

建物は駐車場からだけでなく、南側道路、西側の中央大路からもよく見えるので、
建物の「裏側」を感じさせないように外観に配慮しました。

扇の曲面はリブ状の金属サイディングを176度ずつ角度を付けて表現しています。

建物の中は外観からは感じられないくらいの大空間でリハビリを受けられます。

大きな窓から十分に光を採り入れながら、外からでもリハビリの雰囲気を感じられますが
グラデーションフィルムを貼り、プライバシーにも配慮しています。
通院者・スタッフ共に快適で気持ちよく、末永くご利用いただければと思います。
益々のご発展をお祈り申し上げます。
株式会社 二神建築事務所 担当:葭村(よしむら)
http://futagami-sekkei.designwork.jp/wp/
ひなせうみラボ 完成2021-07-31 9:30:14
岡山県備前市日生町の頭島にて建設しておりました「ひなせうみラボ」が完成しました。

起工式のブログにも書かせていただきましたが、日本財団によるこの「渚の交番プロジェクト」は
海辺の様々な活動、活動に係る人として情報を横断するような拠点を整備するプロジェクトです。
ここ日生町での里海つくりが日生漁協はじめ地域の活動として積極的に行われた成果により、
渚の交番プロジェクトの一環として、この度、ひなせうみラボが誕生致しました。


建物の用途としては、海洋学習の拠点施設となっており、1階には特産品の物販スペース、学習・セミナー等
幅広く活用できる多目的室、研究室、2階には飲食店が入っています。
1階物販スペース・多目的室


2階飲食店


外部通路には備前焼を貼っています。

その他、オーシャンビューを楽しみながら屋外でバーベキューも出来るようになっています。
訪れた方々が、海のことをもっと知り、恩恵を受け、大切に守っていきたいという意識作りになるような
施設になればと思います。そして地域がより活性化して賑わいが生まれることを願っています。
この施設は9月下旬にオープンします。オープン時またブログで報告したいと思います。
この施設以外にも、同島の海水浴場のトイレ・シャワー棟の新築や、五味の市に隣接するカキ処理施設の
改修が並行して行われました。

建物計画から完成まで1年4か月と長いプロジェクトでしたが、地元から観光客まで親しみを持っていただ
けるような施設づくりに全力携われたと感じています。オープンしたらまた足を運びたいと思います。
皆さまも是非、日生観光の際は頭島まで渡ってみてはいかがでしょうか。(船でなく橋で渡れます)
よろしくお願い致します。
株式会社 二神建築事務所 担当:葭村(よしむら)
http://futagami-sekkei.designwork.jp/wp/



